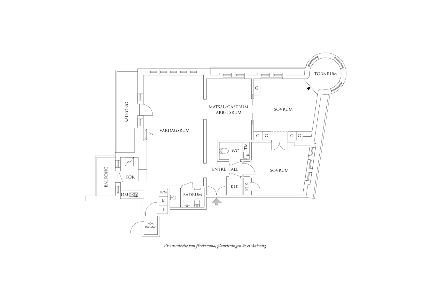
Välkomna till denna utomordentligt välplanerade våning om 116,4 kvm på Föreningsgatan 2! Våningen är stilrent och påkostat renoverad med klassiska materialval och tidlös charm, där gammalt möter nytt som skapar harmoni och elegans vilket ger en fantastisk grund för din personliga inredning. Det optimala gavelläget med fönster åt tre väderstreck skapar ett fint ljusflöde i hela bostaden, utan insyn. Den generösa takhöjden ger en härlig rymd i alla rum. Många av våningens charmiga detaljer som vackra pardörrar, fiskbensmönstrad parkett och blyinfattade fönster är välbevarade.
Tre ljusa och luftiga rum i fil ger härliga sociala ytor att umgås på med nära och kära. Dessutom finns ett tornrum med fönster åt tre håll, perfekt för att avnjuta morgonkaffet eller en drink i kvällssolen. Vardagsrum med öppen spis som verkligen adderar det där lilla extra och rum i fil som skapar en luftig känsla i bostaden med stora fönsterpartier som optimerar ljusinflödet. Stilrent kök med vackra bänkskivor i marmor, även härifrån nås en terrass med utsikt ner åt staden. Den andra terrassen är rymlig med plats för både grill och ett möbelarrangemang. Vackert och rofyllt badrum med stort duschutrymme som även rymmer badkar. Gästtoalett med kombinerad tvättmaskin och torktumlare, smakfulla genomgående påkostade materialval.
Föreningen har totalt 12 parkeringsplatser med el-laddare, en till varje lägenhet. Parkering ingår i månadsavgiften. Två förråd i källaren. I huset finns även ett gästrum med bastu som är fri för föreningens medlemmar att nyttja via bokningssystem.
Dessa vackra och anrika kvarter gränsar till ett stort grönområde och läget i stan är näst intill perfekt med Linné, Haga och Vasastaden på lika bekvämt gångavstånd. Dessutom endast med några minuters promenadavstånd till Slottsskogen.


