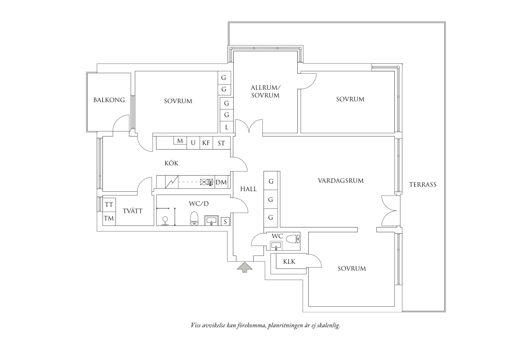
Innanför ytterdörren möts man av en möblerbar hall med goda förvaringsmöjligheter i platsbyggda garderober varav en med skjutdörrar i spegelglas. Vid entrén ligger praktiskt klinkergolv som övergår i ekparkett som är slipad 2025. Väggarna är tapetserade i en randig tapet.
Ljust vardagsrum som präglas av generösa fönsterpartier och dubbeldörrar ut till en väl tilltagen terrass med fin utsikt över Linnéstadens gator. Terrassen är ca 35 kvm och kan delas upp i flera sektioner med olika möbler och växter. Vardagsrummet kan inredas med soffa och övrig inredning. Golvet kläs av ekparkett som är slipad 2025 och väggarna är målade i en beige ton.
Från vardagsrummet nås lägenhetens största sovrum som har gott om plats för dubbelsäng och goda förvaringsmöjligheter i en klädkammare. Mörk trälaminat och vitmålade väggar med en mönstrad fondtapet. Stort fönsterparti mot terrassen.
Klassiskt parallellkök med gott om förvaring, generösa arbetsytor och ljus matplats invid fönstret. Köket är renoverat 2008 med köksinredning i vitt från Ikea, bänkskiva i ek samt stänkskydd i grönvit mosaik. Den maskinella utrustningen består av glaskeramikhäll, kolfilterfläkt, inbyggnadsugn, inbyggnadsmikro, diskmaskin samt kyl med frys. Samtliga vitvaror sattes in vid renoveringen förutom diskmaskinen samt kyl med frys som installerades 2021. Golvet kläs av eklaminat och väggarna är målade i vitt. Från matplatsdelen i köket nås en rymlig balkong i västerläge som är belägen mot innergården.
I anslutning till köket ligger bostadens andra sovrum som har fönster ut mot balkongen. Här finns plats för en dubbelsäng samt förvaringsmöjligheter i en platsbyggd garderob med överskåp. Ljust trälaminatgolv och vitmålade väggar med en randig fondtapet.
Det tredje rummet präglas av ett fint burspråksfönster och kan användas som matsal, arbetsrum, sovrum eller lekrum. Förvaringsmöjligheter i tre platsbyggda garderober med överskåp. Ljus trälaminat och ljusgrå tapetserade väggar.
Via det tredje rummet når man det fjärde rummet som har ett fint hörnfönster. Ljus trälaminat och vitmålade väggar.
Väl tilltaget badrum som renoverades 2018. Mörkgrå klinker med underliggande golvvärme och helkaklade väggar i vitt. Inredningen består av wc, handfatskommod, spegelskåp med belysning, högskåp samt duschhörna med vikväggar i frostat glas. I taket sitter infällda dimbara spotlights.
Separat tvättstuga som nås från köket. Tvättstugan är helkaklad med vitt kakel och klinker och har uppskattat dagsljus från ett fönster. Inredningen består av tvättmaskin och torktumlare från Bosch som installerades 2020.
Till sist erbjuds ni även en gästtoalett med blått mosaikgolv och målade väggar i turkos med vitt kakel ovan handfatet. Inredningen består av wc, handfat samt spegelskåp.

